双向流硬碰硬密封旋球阀
产品简介
管网系统的大部分阀门,主要用来对介质进行截断与调节,这部分阀门在整个系统中所占比重大、用量多、要求阀门经久耐用性价比高,同时应能在介质正向流时进行调节与截断,在压差变换或检修时又可以防止介质倒流,即拥有双向切断功能。多年设计经验开发出的双向流硬碰硬密封旋球阀是结合球阀的优越密封性能与蝶阀的优势结构性能研发而成的,其既拥有球阀双向密封、可调节、寿命长的实用优势,又具备蝶阀体积小,重量轻的优势,其实质为蝶式结构偏心半球阀,密封原理结合了固定球阀的前端密封与偏心蝶阀的强制密封,从而实现了高低压双向切断。在密封副的两个密封面上可根据不同的硬度需要运用太空等离子喷漆、以太激光溅射、真空保护渗复堆焊等先进工艺形成马氏体不锈钢、奥氏体不锈钢、硬质合金、金属陶瓷、人造金刚石等梯度功能材料。能自动对正中心(自适应),自动越程补偿磨损,自动加以极高密封比压,瞬间关闭、瞬间打开密封副间无磨擦,打开时阀芯投影不断内缩并后退、关闭时阀芯投影不断膨胀并前进,结构短,体积小可制造大口径、特大口径、超大口径的阀门,运输、安装、维护检修方便、运行可靠等一系列优点,成为阀门行业的一次重大的技术革新。
凡水泵出口端、管网系统、回收水系统、高位水槽、易水淹的污水系统、防倒流系统的所有阀门须用双向流阀门,本阀门广泛用于冶金、矿山、石化、化工、电力、环保、市政等行业和部门的管路启闭、调节。
销售热线:
产品详情
技术性能规范 Technical performance specification
|
公称通径 (mm) |
公称压力 (MPa) |
试验压力Test pressure(MPa) |
适用温度(℃) Applicable temp |
适用介质 Applicable medium |
||
|
壳体强度试验 Shell strength test |
正向密封试验 Positive seal test |
反向密封试验 Reverse seal test |
||||
|
DN50~3000mm |
0.6 |
0.9 |
0.66 |
0.66 |
未注明为0~80℃ 可生产 0~200℃ 0~80℃ is not indicated Can be produced 0~200℃ |
清水、污水、 油品等 Clean water, sewage, Oil, etc |
|
1.0 |
1.5 |
1.1 |
1.1 |
|||
|
1.6 |
2.4 |
1.76 |
1.76 |
|||
|
2.5 |
3.75 |
2.75 |
2.75 |
|||
|
4.0 |
6.0 |
4.4 |
4.4 |
|||
主要设计制造标准 Main design and manufacturing standards
|
标准内容 Standard content |
标准号 Standard number |
标准名称 Standard Name |
|
法兰标准 Flange standard |
GB/T9113 |
整体钢制管法兰Integral steel pipe flange |
|
GB/T17241.6 |
整体铸铁管法兰Integral cast iron pipe flange |
|
|
结构长度标准 Face - to - Face |
GB/T12221 |
金属阀门结构长度Length of metal valve structure |
|
压力试验标准 Pressure test standard |
GB/T13927 |
通用阀门压力试验Universal valve pressure test |
|
GB/T9092 |
阀门的试验检验Test and inspection of valves |
|
|
结构设计标准 Structural design standard |
GB/T12237 |
通用阀门法兰和对焊连接钢制球阀Universal valve flange and butt welded steel ball valve |
|
GB/T12238 |
通用阀门法兰和对夹连接蝶阀Universal valve flange and clamp connection butterfly valve |
|
|
使用材料标准 Standard for materials used |
GB/T12226 |
通用阀门灰铸铁件技术条件Technical conditions for gray cast iron parts for general valves |
|
GB/T12227 |
通用阀门球墨铸铁件技术条件Technical conditions for ductile iron castings for general valves |
|
|
GB/T12229 |
通用阀门碳素钢铸件技术条件Specification for carbon steel castings for general purpose valves |
|
|
GB/T12230 |
通用阀门奥氏体钢铸件技术条件Specification for austenitic steel castings for general purpose valves |
主要零件材料 Main parts material
|
零部件名称Name of part |
材料名称或代号Material name or code |
|
阀体Body |
灰铸铁、球墨铸铁、碳钢、不锈钢 Gray iron, ductile iron, carbon steel, stainless steel |
|
阀板Disc |
WCB、Q235、不锈钢 WCB, Q235, stainless steel |
|
阀杆Stem |
不锈钢 Stainless steel |
|
阀座Seat |
WCB、Q235、不锈钢 WCB, Q235, stainless steel |
流量系数和流阻系数 Flow coefficient and flow resistance coefficient
|
公称通径 Nominal size (DN) |
公称压力Nominal pressure:≤1.6MPa |
公称压力Nominal pressure:≤2.5MPa |
||
|
C(Kv) |
K(ζ) |
C(Kv) |
K(ζ) |
|
|
40 |
50 |
1.64 |
40 |
2.56 |
|
50 |
80 |
1.30 |
45 |
2.37 |
|
65 |
150 |
1.27 |
120 |
1.98 |
|
80 |
250 |
1.05 |
200 |
1.64 |
|
100 |
400 |
1.00 |
300 |
1.78 |
|
125 |
650 |
0.92 |
450 |
1.93 |
|
150 |
1000 |
0.81 |
800 |
1.26 |
|
200 |
1900 |
0.71 |
1500 |
1.14 |
|
250 |
3100 |
0.65 |
2500 |
1.00 |
|
300 |
4700 |
0.59 |
3600 |
1.00 |
|
350 |
6700 |
0.53 |
5400 |
0.82 |
|
400 |
9000 |
0.51 |
7000 |
0.84 |
|
450 |
11500 |
0.50 |
9500 |
0.73 |
|
500 |
14000 |
0.50 |
12000 |
0.69 |
|
600 |
21000 |
0.47 |
18000 |
0.64 |
|
700 |
30000 |
0.43 |
25000 |
0.61 |
|
800 |
41000 |
0.39 |
35000 |
0.53 |
|
900 |
53000 |
0.37 |
46000 |
0.50 |
|
1000 |
67000 |
0.35 |
58000 |
0.48 |
|
1200 |
100000 |
0.35 |
87000 |
0.44 |
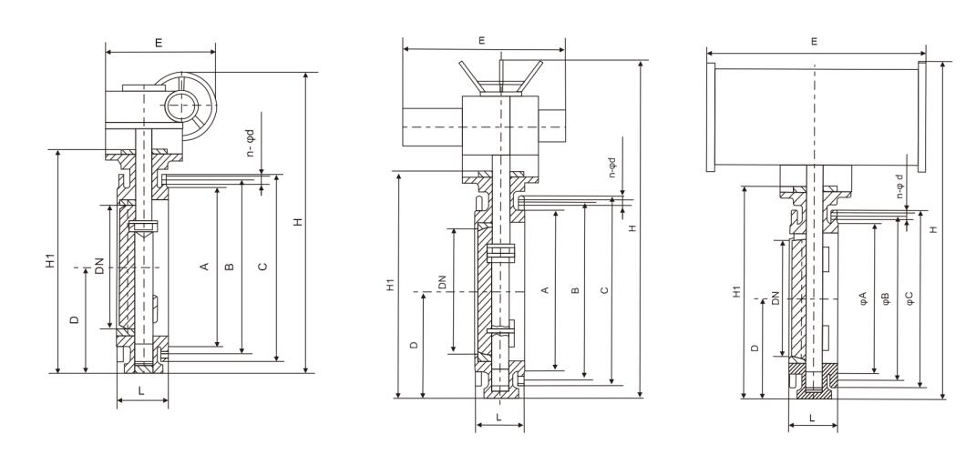
主要连接与安装尺寸表 Main connection and mounting dimension GWXDF3207Y/9204Y-6C
|
PN0.6MPa |
||||||||||||||
|
DN |
A |
B |
C |
D |
E |
H |
L |
n-Φd |
||||||
|
手动 Manual |
气动 Pneumatic |
电动 Electric |
手动 Manual |
气动 Pneumatic |
电动 Electric |
对夹式 Wafer |
法兰式 Flange |
对夹式 Wafer |
法兰式 Flange |
|||||
|
50 |
88 |
110 |
140 |
112 |
200 |
245 |
255 |
350 |
625 |
530 |
43 |
108 |
4-14 |
4-14 |
|
65 |
108 |
130 |
160 |
115 |
200 |
245 |
255 |
370 |
625 |
530 |
46 |
112 |
4-14 |
4-14 |
|
80 |
124 |
150 |
190 |
120 |
200 |
245 |
255 |
380 |
645 |
565 |
64 |
114 |
4-18 |
4-18 |
|
100 |
144 |
170 |
210 |
138 |
200 |
355 |
255 |
420 |
675 |
600 |
64 |
127 |
4-18 |
4-18 |
|
125 |
174 |
200 |
240 |
164 |
200 |
355 |
255 |
460 |
715 |
640 |
70 |
140 |
4-18 |
8-18 |
|
150 |
199 |
225 |
265 |
175 |
280 |
355 |
315 |
555 |
800 |
705 |
76 |
140 |
4-18 |
8-18 |
|
200 |
254 |
280 |
320 |
200 |
425 |
250 |
315 |
760 |
850 |
775 |
89 |
152 |
4-18 |
8-18 |
|
250 |
309 |
335 |
375 |
230 |
425 |
250 |
315 |
830 |
925 |
945 |
114 |
165 |
4-18 |
12-18 |
|
300 |
363 |
395 |
440 |
260 |
560 |
450 |
315 |
895 |
1035 |
1070 |
114 |
178 |
4-22 |
12-22 |
|
350 |
413 |
445 |
490 |
300 |
560 |
450 |
315 |
950 |
1070 |
1140 |
127 |
190 |
4-22 |
12-22 |
|
400 |
463 |
495 |
540 |
340 |
580 |
450 |
315 |
1190 |
1190 |
1210 |
140 |
216 |
4-22 |
16-22 |
|
450 |
518 |
550 |
595 |
350 |
580 |
650 |
714 |
1255 |
1250 |
1355 |
152 |
222 |
4-22 |
16-22 |
|
500 |
568 |
600 |
645 |
380 |
580 |
650 |
714 |
1305 |
1290 |
1415 |
152 |
229 |
4-22 |
20-22 |
|
600 |
667 |
705 |
755 |
450 |
660 |
850 |
810 |
1340 |
1455 |
1605 |
178 |
267 |
4-M24 |
20-26 |
|
700 |
772 |
810 |
860 |
480 |
550 |
850 |
810 |
1520 |
1585 |
1844 |
229 |
292 |
4-M24 |
24-26 |
|
800 |
878 |
920 |
975 |
530 |
550 |
1250 |
810 |
1710 |
1700 |
2040 |
241 |
318 |
4-M27 |
24-30 |
|
900 |
978 |
1020 |
1075 |
580 |
550 |
1250 |
863 |
1810 |
1965 |
2255 |
241 |
330 |
4-M27 |
24-30 |
|
1000 |
1078 |
1120 |
1175 |
650 |
750 |
1250 |
863 |
1960 |
2015 |
2380 |
300 |
410 |
4-M27 |
28-30 |
|
1200 |
1295 |
1340 |
1405 |
760 |
925 |
1250 |
863 |
2250 |
2250 |
2640 |
350 |
470 |
4-M30 |
32-33 |
|
1400 |
1510 |
1560 |
1630 |
850 |
925 |
1250 |
1055 |
2434 |
2550 |
2866 |
390 |
530 |
4-M33 |
36-36 |
|
1600 |
1710 |
1760 |
1830 |
1030 |
925 |
1250 |
1055 |
2780 |
2750 |
3156 |
420 |
600 |
4-M33 |
40-36 |
|
1800 |
1918 |
1970 |
2045 |
1230 |
980 |
1250 |
1183 |
3020 |
2950 |
3421 |
480 |
670 |
4-M36 |
44-39 |
|
2000 |
2125 |
2180 |
2265 |
1350 |
980 |
1500 |
1286 |
3270 |
3350 |
3685 |
540 |
760 |
4-M39 |
48-42 |
|
2200 |
2340 |
2400 |
2485 |
1300 |
- |
- |
- |
- |
- |
- |
580 |
800 |
4-M39 |
52-42 |
|
2400 |
2540 |
2600 |
2685 |
1400 |
- |
- |
- |
- |
- |
- |
620 |
850 |
4-M39 |
56-42 |
|
2600 |
2740 |
2810 |
2905 |
1500 |
- |
- |
- |
- |
- |
- |
650 |
900 |
4-M45 |
60-48 |
|
2800 |
2960 |
3020 |
3115 |
1610 |
- |
- |
- |
- |
- |
- |
700 |
950 |
4-M45 |
64-48 |
|
3000 |
3160 |
3220 |
3315 |
1720 |
- |
- |
- |
- |
- |
- |
700 |
1000 |
4-M45 |
68-48 |
主要连接与安装尺寸表 Main connection and mounting dimension GWXDF3207Y/9204Y-10C
|
PN1.0MPa |
||||||||||||||
|
DN |
A |
B |
C |
D |
E |
H |
L |
n-Φd |
||||||
|
手动 Manual |
气动 Pneumatic |
电动 Electric |
手动 Manual |
气动 Pneumatic |
电动 Electric |
对夹式 Wafer |
法兰式 Flange |
对夹式 Wafer |
法兰式 Flange |
|||||
|
50 |
99 |
125 |
165 |
112 |
200 |
245 |
255 |
350 |
625 |
530 |
43 |
108 |
4-18 |
4-18 |
|
65 |
118 |
145 |
185 |
115 |
200 |
245 |
255 |
370 |
625 |
530 |
46 |
112 |
4-18 |
4-18 |
|
80 |
132 |
160 |
200 |
120 |
200 |
245 |
255 |
380 |
645 |
565 |
64 |
114 |
4-18 |
8-18 |
|
100 |
156 |
180 |
220 |
138 |
200 |
355 |
255 |
420 |
675 |
600 |
64 |
127 |
4-18 |
8-18 |
|
125 |
184 |
210 |
250 |
164 |
200 |
355 |
255 |
460 |
715 |
640 |
70 |
140 |
4-18 |
8-18 |
|
150 |
211 |
240 |
285 |
175 |
280 |
355 |
315 |
555 |
800 |
705 |
76 |
140 |
4-22 |
8-22 |
|
200 |
266 |
295 |
340 |
200 |
425 |
250 |
315 |
760 |
850 |
775 |
89 |
152 |
4-22 |
8-22 |
|
250 |
319 |
350 |
395 |
230 |
425 |
250 |
315 |
830 |
925 |
945 |
114 |
165 |
4-22 |
12-22 |
|
300 |
370 |
400 |
445 |
260 |
560 |
450 |
315 |
895 |
1035 |
1070 |
114 |
178 |
4-22 |
12-22 |
|
350 |
429 |
460 |
505 |
300 |
560 |
450 |
315 |
950 |
1070 |
1140 |
127 |
190 |
4-22 |
16-22 |
|
400 |
480 |
515 |
565 |
340 |
580 |
450 |
315 |
1190 |
1190 |
1210 |
140 |
216 |
4-26 |
16-26 |
|
450 |
530 |
565 |
615 |
350 |
580 |
650 |
714 |
1255 |
1250 |
1355 |
152 |
222 |
4-26 |
20-26 |
|
500 |
582 |
620 |
670 |
380 |
580 |
650 |
714 |
1305 |
1290 |
1415 |
152 |
229 |
4-22 |
20-26 |
|
600 |
682 |
725 |
780 |
450 |
660 |
850 |
810 |
1340 |
1455 |
1605 |
178 |
267 |
4-M27 |
20-30 |
|
700 |
794 |
840 |
895 |
480 |
550 |
850 |
810 |
1520 |
1585 |
1844 |
229 |
292 |
4-M27 |
24-30 |
|
800 |
901 |
950 |
1015 |
530 |
550 |
1250 |
810 |
1710 |
1700 |
2040 |
241 |
318 |
4-M30 |
24-33 |
|
900 |
1001 |
1050 |
1115 |
580 |
550 |
1250 |
863 |
1810 |
1965 |
2255 |
241 |
330 |
4-M30 |
28-33 |
|
1000 |
1112 |
1160 |
1230 |
650 |
750 |
1250 |
863 |
1960 |
2015 |
2380 |
300 |
410 |
4-M33 |
28-36 |
|
1200 |
1328 |
1380 |
1455 |
760 |
925 |
1250 |
863 |
2250 |
2250 |
2640 |
350 |
470 |
4-M36 |
32-39 |
|
1400 |
1530 |
1590 |
1675 |
850 |
925 |
1250 |
1055 |
2434 |
2550 |
2866 |
390 |
530 |
4-M39 |
36-42 |
|
1600 |
1750 |
1820 |
1915 |
1030 |
925 |
1250 |
1055 |
2780 |
2750 |
3156 |
420 |
600 |
4-M45 |
40-48 |
|
1800 |
1950 |
2020 |
2115 |
1230 |
980 |
1250 |
1183 |
3020 |
2950 |
3421 |
480 |
670 |
4-M45 |
44-48 |
|
2000 |
2150 |
2230 |
2325 |
1350 |
980 |
1500 |
1286 |
3270 |
3350 |
3685 |
540 |
760 |
4-M45 |
48-48 |
|
2200 |
2400 |
2440 |
2560 |
1300 |
- |
- |
- |
- |
- |
- |
580 |
800 |
4-M52 |
52-56 |
|
2400 |
2610 |
2650 |
2760 |
1400 |
- |
- |
- |
- |
- |
- |
620 |
850 |
4-M52 |
56-56 |
|
2600 |
2810 |
2850 |
2960 |
1500 |
- |
- |
- |
- |
- |
- |
650 |
900 |
4-M52 |
60-56 |
|
2800 |
3030 |
3070 |
3180 |
1610 |
- |
- |
- |
- |
- |
- |
700 |
950 |
4-M52 |
65-56 |
|
3000 |
3250 |
3290 |
3400 |
1720 |
- |
- |
- |
- |
- |
- |
700 |
1000 |
4-M65 |
68-68 |
主要连接与安装尺寸表 Main connection and mounting dimension GWXDF3207Y/9204Y-16C
|
PN1.6MPa |
||||||||||||||
|
DN |
A |
B |
C |
D |
E |
H |
L |
n-Φd |
||||||
|
手动 Manual |
气动 Pneumatic |
电动 Electric |
手动 Manual |
气动 Pneumatic |
电动 Electric |
对夹式 Wafer |
法兰式 Flange |
对夹式 Wafer |
法兰式 Flange |
|||||
|
50 |
99 |
125 |
165 |
112 |
200 |
245 |
255 |
350 |
625 |
530 |
43 |
108 |
4-18 |
4-18 |
|
65 |
118 |
145 |
185 |
115 |
200 |
245 |
255 |
370 |
625 |
530 |
46 |
112 |
4-18 |
4-18 |
|
80 |
132 |
160 |
200 |
120 |
200 |
245 |
255 |
380 |
645 |
565 |
64 |
114 |
4-18 |
8-18 |
|
100 |
156 |
180 |
220 |
138 |
200 |
355 |
255 |
420 |
675 |
600 |
64 |
127 |
4-18 |
8-18 |
|
125 |
184 |
210 |
250 |
164 |
200 |
355 |
255 |
460 |
715 |
640 |
70 |
140 |
4-18 |
8-18 |
|
150 |
211 |
240 |
285 |
175 |
280 |
355 |
315 |
555 |
800 |
705 |
76 |
140 |
4-22 |
8-22 |
|
200 |
266 |
295 |
340 |
200 |
425 |
250 |
315 |
760 |
850 |
775 |
89 |
152 |
4-22 |
12-22 |
|
250 |
319 |
355 |
405 |
230 |
425 |
250 |
315 |
830 |
925 |
945 |
114 |
165 |
4-26 |
12-26 |
|
300 |
370 |
410 |
460 |
260 |
560 |
450 |
315 |
895 |
1035 |
1070 |
114 |
178 |
4-26 |
12-26 |
|
350 |
429 |
470 |
520 |
300 |
560 |
450 |
315 |
950 |
1070 |
1140 |
127 |
190 |
4-26 |
16-26 |
|
400 |
480 |
525 |
580 |
340 |
580 |
450 |
315 |
1190 |
1190 |
1210 |
140 |
216 |
4-30 |
16-30 |
|
450 |
548 |
585 |
640 |
350 |
580 |
650 |
714 |
1255 |
1250 |
1335 |
152 |
222 |
4-30 |
20-30 |
|
500 |
609 |
650 |
715 |
380 |
580 |
650 |
714 |
1305 |
1290 |
1415 |
152 |
229 |
4-M30 |
20-33 |
|
600 |
720 |
770 |
840 |
450 |
660 |
850 |
810 |
1340 |
1455 |
1605 |
178 |
267 |
4-M33 |
20-36 |
|
700 |
794 |
840 |
910 |
480 |
550 |
850 |
810 |
1520 |
1585 |
1844 |
229 |
292 |
4-M33 |
24-36 |
|
800 |
901 |
950 |
1025 |
530 |
550 |
1250 |
810 |
1710 |
1700 |
2040 |
241 |
318 |
4-M36 |
24-39 |
|
900 |
1001 |
1050 |
1125 |
580 |
550 |
1250 |
863 |
1810 |
1965 |
2255 |
241 |
330 |
4-M36 |
28-39 |
|
1000 |
1112 |
1170 |
1255 |
650 |
750 |
1250 |
863 |
1960 |
2015 |
2380 |
300 |
410 |
4-M39 |
28-42 |
|
1200 |
1328 |
1390 |
1485 |
760 |
925 |
1250 |
863 |
2250 |
2250 |
2640 |
350 |
470 |
4-M45 |
32-48 |
|
1400 |
1530 |
1590 |
1685 |
850 |
925 |
1250 |
1055 |
2434 |
2250 |
2866 |
390 |
530 |
4-M45 |
36-48 |
|
1600 |
1750 |
1820 |
1930 |
1030 |
925 |
1250 |
1055 |
2780 |
2750 |
3156 |
420 |
600 |
4-M52 |
40-55 |
|
1800 |
1950 |
2020 |
2130 |
1230 |
980 |
1250 |
1183 |
3020 |
2950 |
3421 |
480 |
670 |
4-M52 |
44-55 |
|
2000 |
2150 |
2230 |
2345 |
1350 |
980 |
1500 |
1286 |
3270 |
3350 |
3685 |
540 |
760 |
4-M56 |
48-60 |
主要连接与安装尺寸表 Main connection and mounting dimension GWXDF3207Y/9204Y-25C
|
PN2.5MPa |
||||||||||||||
|
DN |
A |
B |
C |
D |
E |
H |
L |
n-Φd |
||||||
|
手动 Manual |
气动 Pneumatic |
电动 Electric |
手动 Manual |
气动 Pneumatic |
电动 Electric |
对夹式 Wafer |
法兰式 Flange |
对夹式 Wafer |
法兰式 Flange |
|||||
|
50 |
99 |
125 |
165 |
112 |
200 |
245 |
255 |
350 |
625 |
530 |
43 |
108 |
4-18 |
4-18 |
|
65 |
118 |
145 |
185 |
115 |
200 |
245 |
255 |
370 |
625 |
530 |
46 |
112 |
4-18 |
8-18 |
|
80 |
132 |
160 |
200 |
120 |
200 |
245 |
255 |
380 |
645 |
565 |
64 |
114 |
4-18 |
8-18 |
|
100 |
156 |
190 |
235 |
138 |
200 |
355 |
255 |
420 |
675 |
600 |
64 |
127 |
4-22 |
8-22 |
|
125 |
184 |
220 |
270 |
164 |
200 |
355 |
255 |
460 |
715 |
640 |
70 |
140 |
4-26 |
8-26 |
|
150 |
211 |
250 |
300 |
175 |
280 |
355 |
315 |
555 |
800 |
705 |
76 |
140 |
4-26 |
8-26 |
|
200 |
274 |
310 |
360 |
200 |
425 |
250 |
315 |
760 |
850 |
775 |
89 |
152 |
4-26 |
12-26 |
|
250 |
330 |
370 |
425 |
230 |
425 |
250 |
315 |
830 |
925 |
945 |
114 |
165 |
4-30 |
12-26 |
|
300 |
389 |
430 |
485 |
260 |
560 |
450 |
315 |
895 |
1035 |
1070 |
114 |
178 |
4-30 |
16-30 |
|
350 |
448 |
490 |
555 |
300 |
560 |
450 |
315 |
950 |
1070 |
1140 |
127 |
190 |
4-33 |
16-33 |
|
400 |
503 |
550 |
620 |
340 |
580 |
450 |
315 |
1190 |
1190 |
1210 |
140 |
216 |
4-36 |
16-36 |
|
450 |
548 |
600 |
670 |
350 |
580 |
650 |
714 |
1255 |
1250 |
1335 |
152 |
222 |
4-36 |
20-36 |
|
500 |
609 |
660 |
730 |
380 |
580 |
650 |
714 |
1305 |
1290 |
1415 |
152 |
229 |
4-M33 |
20-36 |
|
600 |
720 |
770 |
845 |
450 |
660 |
850 |
810 |
1340 |
1455 |
1605 |
178 |
267 |
4-M36 |
20-39 |
|
700 |
820 |
875 |
960 |
480 |
550 |
850 |
810 |
1520 |
1585 |
1844 |
229 |
292 |
4-M39 |
24-42 |
|
800 |
928 |
990 |
1085 |
530 |
550 |
1250 |
810 |
1710 |
1700 |
2040 |
241 |
318 |
4-M45 |
24-48 |
|
900 |
1028 |
1090 |
1185 |
580 |
550 |
1250 |
863 |
1810 |
1965 |
2255 |
241 |
330 |
4-M45 |
28-48 |
|
1000 |
1140 |
1210 |
1320 |
650 |
750 |
1250 |
863 |
1960 |
2015 |
2380 |
300 |
410 |
4-M52 |
28-55 |
|
1200 |
1350 |
1420 |
1530 |
760 |
925 |
1250 |
863 |
2250 |
2250 |
2640 |
350 |
470 |
4-M52 |
32-55 |
|
1400 |
1560 |
1640 |
1755 |
850 |
925 |
1250 |
1055 |
2434 |
2550 |
2866 |
390 |
530 |
4-M56 |
36-60 |
|
1600 |
1780 |
1860 |
1975 |
1030 |
925 |
1250 |
1055 |
2780 |
2750 |
3156 |
420 |
600 |
4-M56 |
40-60 |
|
1800 |
1985 |
2070 |
2195 |
1230 |
980 |
1250 |
1183 |
3020 |
2950 |
3421 |
480 |
670 |
4-M64 |
44-68 |
|
2000 |
2210 |
2300 |
2425 |
1350 |
980 |
1500 |
1286 |
3270 |
3350 |
3685 |
540 |
760 |
4-M64 |
48-68 |
主要连接与安装尺寸表 Main connection and mounting dimension GWXDF3207Y/9204Y-40C
|
PN4.0MPa |
||||||||||||||
|
DN |
A |
B |
C |
D |
E |
H |
L |
n-Φd |
||||||
|
手动 Manual |
气动 Pneumatic |
电动 Electric |
手动 Manual |
气动 Pneumatic |
电动 Electric |
对夹式 Wafer |
法兰式 Flange |
对夹式 Wafer |
法兰式 Flange |
|||||
|
50 |
99 |
125 |
165 |
112 |
200 |
245 |
255 |
350 |
625 |
530 |
43 |
108 |
4-18 |
4-18 |
|
65 |
118 |
145 |
185 |
115 |
200 |
245 |
255 |
370 |
625 |
530 |
46 |
112 |
4-18 |
8-18 |
|
80 |
132 |
160 |
200 |
120 |
200 |
245 |
255 |
380 |
645 |
565 |
64 |
114 |
4-18 |
8-18 |
|
100 |
156 |
190 |
235 |
138 |
200 |
355 |
255 |
420 |
675 |
600 |
64 |
127 |
4-22 |
8-22 |
|
125 |
184 |
220 |
270 |
164 |
200 |
355 |
255 |
460 |
715 |
640 |
70 |
140 |
4-26 |
8-26 |
|
150 |
211 |
250 |
300 |
175 |
280 |
355 |
315 |
555 |
800 |
705 |
76 |
140 |
4-26 |
8-26 |
|
200 |
284 |
320 |
375 |
200 |
425 |
250 |
315 |
760 |
850 |
775 |
89 |
152 |
4-30 |
12-30 |
|
250 |
345 |
385 |
450 |
230 |
425 |
250 |
315 |
830 |
925 |
945 |
114 |
165 |
4-33 |
12-33 |
|
300 |
409 |
450 |
515 |
260 |
560 |
450 |
315 |
895 |
1035 |
1070 |
114 |
178 |
4-33 |
16-30 |
|
350 |
465 |
510 |
580 |
300 |
560 |
450 |
315 |
950 |
1070 |
1140 |
127 |
190 |
4-36 |
16-36 |
|
400 |
535 |
585 |
660 |
340 |
580 |
450 |
315 |
1190 |
1190 |
1210 |
140 |
216 |
4-39 |
16-39 |
|
450 |
560 |
610 |
685 |
350 |
580 |
650 |
714 |
1255 |
1250 |
1335 |
152 |
222 |
4-39 |
20-39 |
|
500 |
615 |
670 |
755 |
380 |
580 |
650 |
714 |
1305 |
1290 |
1415 |
152 |
229 |
4-M39 |
20-42 |
|
600 |
735 |
795 |
890 |
450 |
660 |
850 |
810 |
1340 |
1455 |
1605 |
178 |
267 |
4-M45 |
20-48 |
